IMPROVING INVESTMENT ENVIRONMENT
MANUFACTURING REAL ESTATE
For Rent / Sale.
Parameters:
The main purpose of the building is production.
The number of floors is 1 with a mezzanine.
Technological (clean) height of production ~ 8.5 m.
The energy efficiency class of the building is A++.
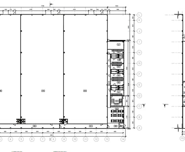
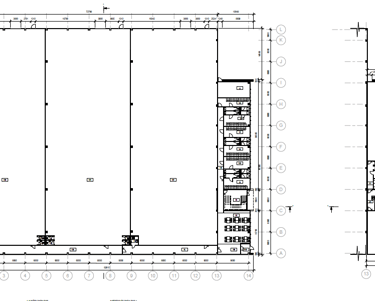
The area of the premises is about 5,330 m2.
The number of parking spaces is about 37.
The project is partially financed by the ILTE from the state budget of the Republic of Lithuania.








Construction of an industrial-manufacturing building at the Marijampolė Free Economic Zone (FEZ) has been completed, where an investor is able to settle in quickly and conveniently. The building has an area of 5,330 m². It is available for lease, with a possibility to expand the premises as needed. The infrastructure of the plot of land has been also built: paved surfaces, engineering networks, parking spaces for cars and bicycles, charging points for electric vehicles, and a security system.
“To make it possible for a potential investor to quickly set up operations at the Marijampolė FEZ, we offer the only industrial-manufacturing building in the highest energy-efficiency class (A++) in the region, the adaptation of which to the individual needs of the manufacturer would be fast, convenient and at the lowest cost. It is available for use by an investor at the end of 2024. In addition, in the near future, we will provide an opportunity for the investor or investors to expand to adjacent plots as needed, where we plan to build several other similar-sized industrial-manufacturing buildings,” says Simonas Petrulis, CEO of Marijampolė FEZ.
Attractive to a manufacturer
The FEZ industrial-manufacturing building is being constructed on a 1.1-hectare plot of land. The height of the building is up to 12.5 m, and the distance between pillars is 12 m. The building is fully supplied with all utilities, electricity and natural gas.
The CEO of the Marijampolė FEZ emphasises that the project also includes the use of smart device controllers and installation of a solar power array, which generate electricity for use in the building. Potential tenants of the building, with its 5,000 m² of production area, include manufacturers and exporters of higher- and medium-value products who are looking for industrial-manufacturing premises.
Petrulis notes that Marijampolė can be considered a Lithuanian land port from which it is convenient to transport goods in all directions. The Marijampolė FEZ is especially convenient for manufacturers who plan to export their products. The FEZ is conveniently accessed from Western and Eastern Europe and the Nordic countries, as the FEZ is located next to the Via Baltica motorway connecting Warsaw and Tallinn, along with the European-gauge Rail Baltica railway, which from Warsaw will reach Tallinn in a few years, and through Tallinn will allow access to the Scandinavian countries. In addition, Marijampolė has excellent connections with Klaipėda Seaport and the airports in Kaunas and Vilnius.
“Therefore, an investor at the Marijampolė FEZ has easy access not only to European markets, but also to Asian markets. In addition to the infrastructure offered at the Marijampolė FEZ, a manufacturing company operating at the FEZ will find the range of incentives to be particularly attractive: relief from corporate income tax, real estate tax, infrastructure tax, land tax, as well as a number of other incentives,” says Petrulis.
Rationality, efficiency and economy
“We identified the priorities for the building design as certain keywords: rationality, efficiency and economy,” says Viktorija Blažienė, CEO of 2L Architects. “We sought rationality by choosing the appropriate structural elements. During the design process, we closely examined the materials and surfaces used in the project, for example, we critically assessed the paving surfaces and their component layers used on the plot of land, so that they would not be excessive, so that everything would be only in the amount necessary.”
Investing in a long-term solution
Industry in recent years has been undergoing a transformation based on automation, but it is noteworthy that companies are in no hurry to completely remove the human element from production processes. Although warehouses, engineering systems, access controls and building management systems are especially optimised and automated, this transformation remains relatively slow in making its way to production lines. There often remains a high demand for employees in the stages of assembly of components, management of robots, and quality control. According to Petrulis, it is especially important for factories to attract better-educated employees, to offer them comfortable spaces in which to work and to rest and to travel conveniently to the workplace, and even to provide recreational spaces or convenient places to park bicycles.
The CEO of the Marijampolė FEZ is proud that such an A++ class industrial-manufacturing building will be the first of its kind in the region; it is unique.
Get in touch
Investor Selection Procedure
Information on the settling in the manufacturing premises
